Reihenhaus mit fantastischer Aussicht zu verkaufen in Bahia de las Rocas, Manilva

638.000 €

Hauptmerkmale

  • Referenz NP1610
  • Typ Reihenhaus
  • Schlafzimmer 3
  • Badezimmer 2
  • Innenraum 124 m²
  • Bebaut 265 m²
  • Terrasse 103 m²

Beschreibung

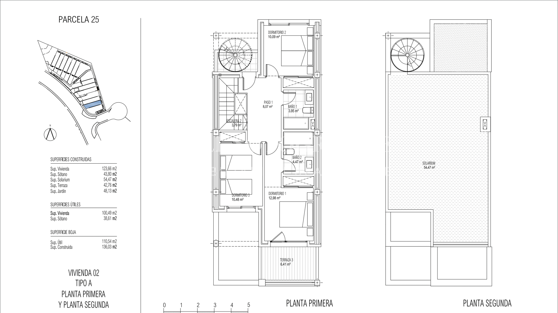
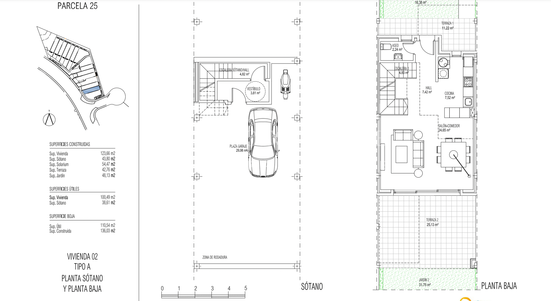
Vom Plan werden diese Reihenhäuser mit herrlichem Blick verkauft, die sich in einer Bucht befinden, welche zur Gemeindeverwaltung Manilva gehört. Diese Objekte gehören zur zweiten Phase einer Wohnungsanlage, die mit 3 Schlafzimmern ausgestattet sind und die über unglaubliche Meerblicke verfügen, bis hin nach Gibraltar und die marokkanische Küste.

Die Häuser haben eine bebaute Fläche von 123,66 m2 bis 127,24 m2, mit Kellern von 43,80 m2 bis 45,08 m2, Terrassen von 36,97 m2 bis 90,20 m2 und Sonnenterrassen von 54,27 m2 bis 54,67 m2, und dazu private Gärten von 16,39 m2 bis 119,36 m2. Alle Reihenhäuser verfügen über eine private Garage für 2 Fahrzeuge im Untergeschoss und können außerdem alle Gemeinschaftsbereiche nutzen, sowohl den Gemeinschaftspool als auch den Paddle-Tennisplatz und den Kinderbereich.

Die Aufteilung ist wie folgt: wir betreten die Eingangshalle, von der aus wir Zugang zur Gästetoilette und zur Küche haben, die zum Wohn-Esszimmer offen ist, welches Zugang zur Terrasse bietet. Im Obergeschoss befinden sich die 3 Schlafzimmer, von denen sich zwei ein Bad teilen und das Hauptschlafzimmer mit eigenem Bad und eigener Terrasse ausgestattet ist.

Reihenhaus mit fantastischer Aussicht zu verkaufen in Bahia de las Rocas, Manilva
Reihenhaus mit fantastischer Aussicht zu verkaufen in Bahia de las Rocas, Manilva
Reihenhaus mit fantastischer Aussicht zu verkaufen in Bahia de las Rocas, Manilva
Reihenhaus mit fantastischer Aussicht zu verkaufen in Bahia de las Rocas, Manilva

Immobilienmerkmale und -daten

  • Referenz NP1610
  • Typ Reihenhaus
  • Preis 638.000 €
  • Schlafzimmer 3
  • Badezimmer 2
  • Badezimmer en-suite 1
  • Innenraum 124 m²
  • Bebaut 265 m²
  • Terrasse 103 m²
  • Pool Gemeinschaftlich
  • Garten Privat
  • Garage Privat
  • Orientierung Süd
  • Energieausweis
  • Private Terrasse
  • Tennis / Paddeltennis
  • Klimaanlage
  • Meerblick
  • Küche komplett ausgestattet
  • Meer/Strandnähe
  • Nähe Golfplatz
  • Kellergeschoss
  • Internet - Wi-Fi
  • Doppelverglasung
  • Neubau
  • Geschlossene Wohnanlage
  • Gästetoilette
  • Panoramablick

Der Verkaufspreis beinhaltet keine Steuern oder zusätzlichen Kosten. Der Käufer trägt die Kosten für Notar und Grundbuch sowie die Grunderwerbsteuer (ITP), die derzeit für Bestandsimmobilien bei 7 % liegt, oder alternativ bei Neubauten 10 % Mehrwertsteuer (MwSt.) sowie etwa 1,2 % Stempelsteuer (AJD). Bei bestimmten Grundstücken kann ein Mehrwertsteuersatz von 21 % anfallen, gemäß den geltenden Vorschriften und vorbehaltlich der jeweils anwendbaren gesetzlichen Bestimmungen.

Diese Angaben dienen ausschließlich zu Informationszwecken und können Fehler, Auslassungen, Änderungen, Zwischenverkauf oder eine Rücknahme vom Markt beinhalten. Informationsdokument verfügbar gemäß Dekret 218/2005 vom 11. Oktober der Junta de Andalucía.

Immobilie auf der Karte finden

Ähnliche Immobilien

 
Bahia de las Rocas, Manilva

Reihenhaus mit fantastischer Aussicht zu verkaufen in Bahia de las Rocas, Manilva

Vom Plan werden diese Reihenhäuser mit herrlichem Blick verkauft, die sich in einer Bucht befinden, welche zur Gemeindeverwaltung Manilva gehört. Diese Objekte gehören zur zweiten...

  • NP1609 Ref.
  • 3 Schlafzimmer
  • 2 Bäder
  • 264,69 m² Bebaut
  • 102,6 m² Terrasse
717.000 €
Mehr anzeigen
NP1609
  Neubau
Bahia de las Rocas, Manilva

Reihenhaus mit fantastischer Aussicht zu verkaufen in Bahia de las Rocas, Manilva

Vom Plan werden diese Reihenhäuser mit herrlichem Blick verkauft, die sich in einer Bucht befinden, welche zur Gemeindeverwaltung Manilva gehört. Diese Objekte gehören zur zweiten...

  • NP1608 Ref.
  • 3 Schlafzimmer
  • 2 Bäder
  • 264,69 m² Bebaut
  • 102,6 m² Terrasse
653.000 €
Mehr anzeigen
NP1608

Kontaktieren Sie uns für weitere Optionen

JORGE MARTI